Теплообменник НН№113 ДУ 250 162-196 пластин 1,6 МПа
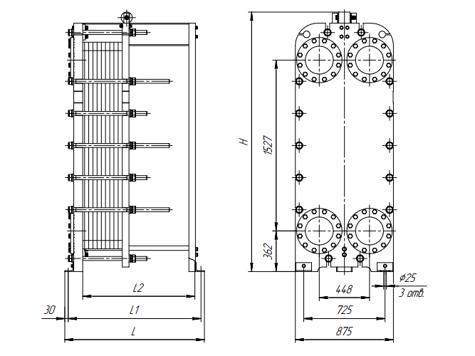
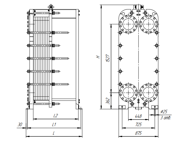
Теплообменник Ридан НН№113 на раме №4 — разборный пластинчатый аппарат с присоединительным диаметром Ду 250 мм, рассчитанный на повышенное рабочее давление до 1,6 МПа. Модель комплектуется пакетом от 162 до 196 пластин, обеспечивая площадь теплообмена до 219,80 м² .
- № рамы
- 4
- Количество пластин
- 162-196
- Температура рабочей среды, °С
- от -25 до +180
Подбор рекомендованного аналога
Заполните форму, и мы обязательно с Вами свяжемсяОсновное
Все характеристикиПредприятие обеспечивает полный производственный цикл, включая производство пластин, плит, элементов рам и других комплектующих. Локализация достигает 95%, мощность предприятия составляет более 20 тыс. изделий в год.
- № рамы
- 4
- Количество пластин
- 162-196
- Температура рабочей среды, °С
- от -25 до +180
- Расчетное давление, МПа
- 1,6
- Габаритные размеры (ШхВхГ), мм
- 875х2317х1745
- Макс. масса, кг
- 3470
Обзор
Обзор- Высокая производительность: Рама №4 позволяет устанавливать пакет из 162-196 пластин, обеспечивая эффективную площадь теплообмена до 292,80 м². Данная конфигурация предназначена для решения сложных технологических задач.
- Вариативность каналов: Для точного соответствия параметрам системы доступны пластины с типами каналов ТК, ТМ, TL и их гибридными комбинациями (TKTM, TMTL, TKTL).
- Конструктивные особенности: Модель имеет габаритные размеры 875×2317×1745 мм и массу 3270 кг.
- Надежное уплотнение (SonderLock): Уплотнительные элементы устанавливаются в профилированные пазы по контуру пластин и фиксируются зажимной клипсой. Конструкция SonderLock представляет собой клипсу без ушка, которая фиксируется защелкиванием. При монтаже клипса вставляется в паз на пластине и надежно закрепляется до характерного щелчка. Дополнительную герметичность обеспечивают уплотнения портов на неподвижной плите.
- Дополнительные опции: Возможна комплектация теплоизоляцией для снижения тепловых потерь.
Документы
Все документы- № рамы
- 4
- Количество пластин
- 162-196
- Температура рабочей среды, °С
- от -25 до +180
- Регулируемая среда (теплоноситель)
- вода, пар, углеводороды, кислоты, пищевые жидкости и другие
- Рабочее давление, бар изб.
- до 25
- Расчетное давление, МПа
- 1,6
- Материал пластин
- AISI 304, AISI 316L, SMO 254, Titan, C-276 и другие
- Материал прокладки
- EPDM, Nitril, Viton и их модификации
- Габаритные размеры (ШхВхГ), мм
- 875х2317х1745
- Макс. масса, кг
- 3470
- Стяжные шпильки (размер)
- М36
- Стяжные шпильки (кол-во), шт
- 14
- Высокая производительность: Рама №4 позволяет устанавливать пакет из 162-196 пластин, обеспечивая эффективную площадь теплообмена до 292,80 м². Данная конфигурация предназначена для решения сложных технологических задач.
- Вариативность каналов: Для точного соответствия параметрам системы доступны пластины с типами каналов ТК, ТМ, TL и их гибридными комбинациями (TKTM, TMTL, TKTL).
- Конструктивные особенности: Модель имеет габаритные размеры 875×2317×1745 мм и массу 3270 кг.
- Надежное уплотнение (SonderLock): Уплотнительные элементы устанавливаются в профилированные пазы по контуру пластин и фиксируются зажимной клипсой. Конструкция SonderLock представляет собой клипсу без ушка, которая фиксируется защелкиванием. При монтаже клипса вставляется в паз на пластине и надежно закрепляется до характерного щелчка. Дополнительную герметичность обеспечивают уплотнения портов на неподвижной плите.
- Дополнительные опции: Возможна комплектация теплоизоляцией для снижения тепловых потерь.
Товары серии
Название и артикул | № рамы | Количество пластин | Температура рабочей среды, °С | Расчетное давление, МПа | Габаритные размеры (ШхВхГ), мм | Макс. масса, кг | ||
|---|---|---|---|---|---|---|---|---|
Теплообменник НН№113 ДУ 250 11-36 пластин 1,0 МПа | 1 | 11-36 | от -25 до +180 | 1,0 | 875х2317х835 | 1950 | ||
₽ 1 141 600.00 Заказная позиция | ||||||||
Теплообменник НН№113 ДУ 250 11-34 пластин 1,6 МПа | 1 | 11-34 | от -25 до +180 | 1,6 | 875х2317х845 | 2270 | ||
₽ 1 323 897.00 Заказная позиция | ||||||||
Теплообменник НН№113 ДУ 250 37-107 пластин 1,0 МПа | 2 | 37-107 | от -25 до +180 | 1,0 | 875х2317х1235 | 2370 | ||
₽ 1 501 840.00 Заказная позиция | ||||||||
Теплообменник НН№113 ДУ 250 35-105 пластин 1,6 МПа | 2 | 35-105 | от -25 до +180 | 1,6 | 875х2317х1245 | 2780 | ||
₽ 1 659 137.00 Заказная позиция | ||||||||
Теплообменник НН№113 ДУ 250 108-163 пластин 1,0 МПа | 3 | 108-163 | от -25 до +180 | 1,0 | 875х2317х1535 | 2720 | ||
₽ 2 500 543.00 Заказная позиция | ||||||||
Теплообменник НН№113 ДУ 250 106-161 пластин 1,6 МПа | 3 | 106-161 | от -25 до +180 | 1,6 | 875х2317х1545 | 3200 | ||
₽ 2 656 689.00 Заказная позиция | ||||||||
Теплообменник НН№113 ДУ 250 164-198 пластин 1,0 МПа | 4 | 164-198 | от -25 до +180 | 1,0 | 875х2317х1735 | 2950 | ||
₽ 3 277 306.00 Заказная позиция | ||||||||
Теплообменник НН№113 ДУ 250 162-196 пластин 1,6 МПа | 4 | 162-196 | от -25 до +180 | 1,6 | 875х2317х1745 | 3470 | ||
₽ 3 435 164.00 Заказная позиция | ||||||||
Теплообменник НН№113 ДУ 250 199-289 пластин 1,0 МПа | 5 | 199-289 | от -25 до +180 | 1,0 | 875х2317х2235 | 3510 | ||
₽ 3 796 289.00 Заказная позиция | ||||||||
Теплообменник НН№113 ДУ 250 197-287 пластин 1,6 МПа | 5 | 197-287 | от -25 до +180 | 1,6 | 875х2317х2245 | 4140 | ||
₽ 3 964 121.00 Заказная позиция | ||||||||
Теплообменник НН№113 ДУ 250 290-380 пластин 1,0 МПа | 6 | 290-380 | Температура рабочей среды, °С | 1,0 | 875х2317х2735 | 4090 | ||
₽ 5 112 621.00 Заказная позиция | ||||||||
Теплообменник НН№113 ДУ 250 288-378 пластин 1,6 МПа | 6 | 288-378 | от -25 до +180 | 1,6 | 875х2317х2745 | 4830 | ||
₽ 5 259 720.00 Заказная позиция | ||||||||
Теплообменник НН№113 ДУ 250 381-470 пластин 1,0 МПа | 7 | 381-470 | от -25 до +180 | 1,0 | 875х2317х3235 | 4660 | ||
₽ 6 433 582.00 Заказная позиция | ||||||||
Теплообменник НН№113 ДУ 250 379-469 пластин 1,6 МПа | 7 | 379-469 | от -25 до +180 | 1,6 | 875х2317х3245 | 5520 | ||
₽ 6 602 359.00 Заказная позиция | ||||||||
Теплообменник НН№113 ДУ 250 471-652 пластин 1,0 МПа | 8 | 471-652 | от -25 до +180 | 1,0 | 875х2417х4235 | 5860 | ||
₽ 7 769 271.00 Заказная позиция | ||||||||
Теплообменник НН№113 ДУ 250 470-650 пластин 1,6 МПа | 8 | 470-650 | от -25 до +180 | 1,6 | 875х2417х4245 | 6920 | ||
₽ 7 980 681.00 Заказная позиция | ||||||||

