Теплообменник НН№07 ДУ 50 5-17 пластин 1,0 МПа
Теплообменник НН№07 (рама №1) — это базовая модель аппарата, рассчитанная на давление до 1,0 МПа.
- № рамы
- 1
- Количество пластин
- 5-17
- Температура рабочей среды, °С
- от -25 до +180
Подбор рекомендованного аналога
Заполните форму, и мы обязательно с Вами свяжемсяОсновное
Все характеристикиПредприятие обеспечивает полный производственный цикл, включая производство пластин, плит, элементов рам и других комплектующих. Локализация достигает 95%, мощность предприятия составляет более 20 тыс. изделий в год.
- № рамы
- 1
- Количество пластин
- 5-17
- Температура рабочей среды, °С
- от -25 до +180
- Расчетное давление, МПа
- 1,0
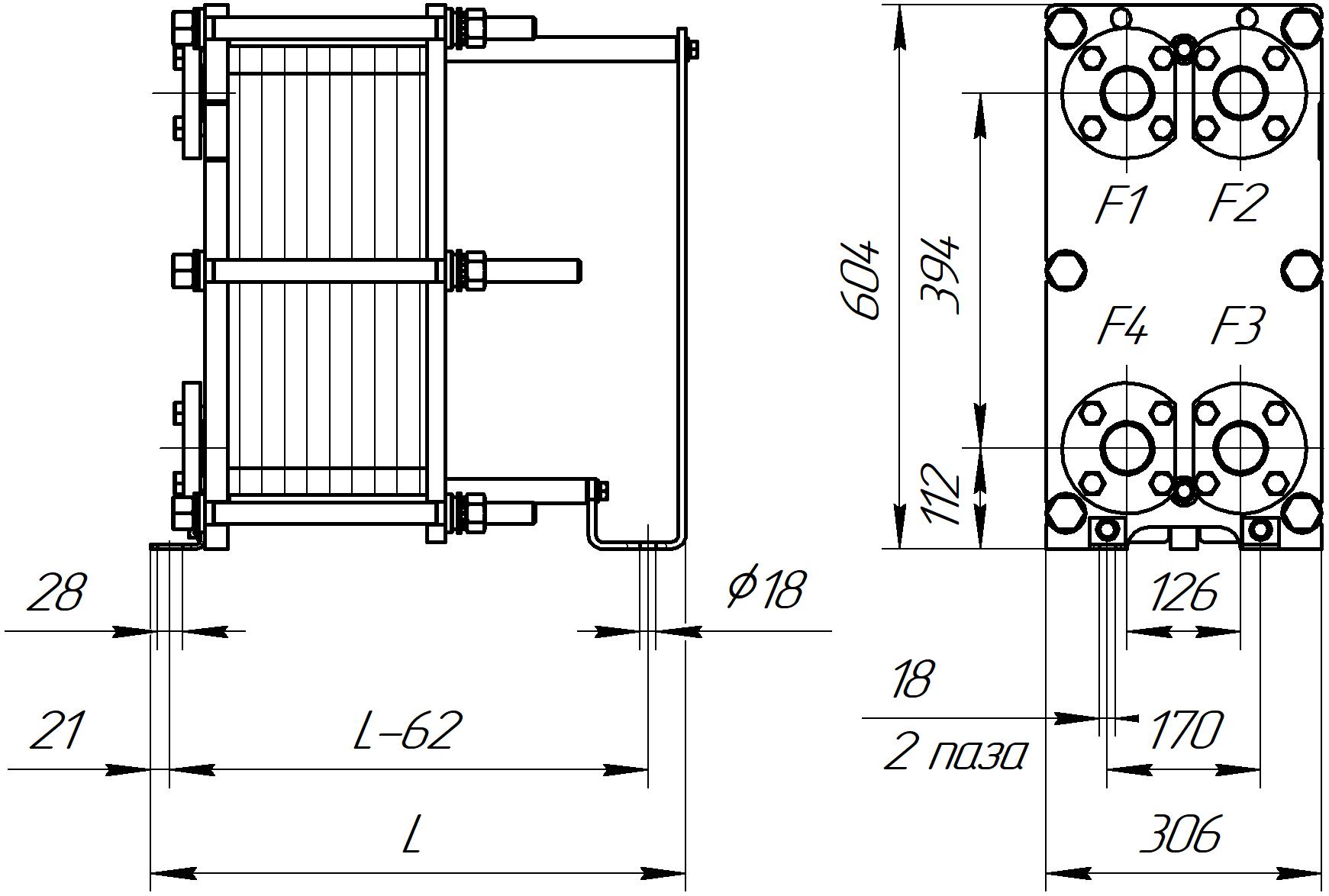
- Габаритные размеры (ШхВхГ), мм
- 306х604х288
- Макс. масса, кг
- 78
Обзор
Обзор- Конфигурация пластин: Пакет включает от 5 до 17 пластин. При площади одной пластины 0,083 м², аппарат обеспечивает до 1,25 м² теплообмена.
- Типы каналов: Доступны каналы TK, TM, TL и их комбинации. Базовая компоновка позволяет создать аппарат с оптимальным соотношением цены и эффективности для стандартных задач.
- Надежное уплотнение (Hang-on):
Герметичность обеспечивается прокладками с клипсовой фиксацией типа Hang-on. Принцип фиксации: клипса имеет Т-образные концы, которые заводятся за обратную сторону пластины. В отличие от клеевых соединений, такой клипсовый замок обеспечивает простую и быструю замену прокладок. Монтируется в специальные углубления по контуру пластины, а дополнительная надежность обеспечивается специальным ушком на Hang-on.
Дополнительную герметичность обеспечивают уплотнения портов на неподвижной плите. - Особенности поставки:
Поставляется с ответными фланцами - Дополнительные опции: Возможность предусмотреть теплоизоляцию
Документы
Все документы- № рамы
- 1
- Количество пластин
- 5-17
- Температура рабочей среды, °С
- от -25 до +180
- Регулируемая среда (теплоноситель)
- вода, пар, углеводороды, кислоты, пищевые жидкости и другие
- Макс. рабочее давление, бар изб.
- до 25
- Расчетное давление, МПа
- 1,0
- Материал пластин
- AISI 304, AISI 316L, SMO 254, Titan, C-276 и другие
- Материал прокладки
- EPDM, Nitril, Viton и их модификации
- Габаритные размеры (ШхВхГ), мм
- 306х604х288
- Макс. масса, кг
- 78
- Стяжные шпильки (размер)
- М20
- Стяжные шпильки (кол-во), шт
- 6
- Конфигурация пластин: Пакет включает от 5 до 17 пластин. При площади одной пластины 0,083 м², аппарат обеспечивает до 1,25 м² теплообмена.
- Типы каналов: Доступны каналы TK, TM, TL и их комбинации. Базовая компоновка позволяет создать аппарат с оптимальным соотношением цены и эффективности для стандартных задач.
- Надежное уплотнение (Hang-on):
Герметичность обеспечивается прокладками с клипсовой фиксацией типа Hang-on. Принцип фиксации: клипса имеет Т-образные концы, которые заводятся за обратную сторону пластины. В отличие от клеевых соединений, такой клипсовый замок обеспечивает простую и быструю замену прокладок. Монтируется в специальные углубления по контуру пластины, а дополнительная надежность обеспечивается специальным ушком на Hang-on.
Дополнительную герметичность обеспечивают уплотнения портов на неподвижной плите. - Особенности поставки:
Поставляется с ответными фланцами - Дополнительные опции: Возможность предусмотреть теплоизоляцию
Товары серии
Название и артикул | № рамы | Количество пластин | Температура рабочей среды, °С | Расчетное давление, МПа | Габаритные размеры (ШхВхГ), мм | Макс. масса, кг | ||
|---|---|---|---|---|---|---|---|---|
Теплообменник НН№07 ДУ 50 5-17 пластин 1,0 МПа | 1 | 5-17 | от -25 до +180 | 1,0 | 306х604х288 | 78 | ||
₽ 49 510.00 Заказная позиция | ||||||||
Теплообменник НН№07 ДУ 50 5-17 пластин 1,6 МПа | 1 | 5-17 | от -25 до +180 | 1,6 | 306х604х293 | 88 | ||
₽ 49 352.00 Заказная позиция | ||||||||
Теплообменник НН№07 ДУ 50 18-39 пластин 1,0 МПа | 2 | 18-39 | от -25 до +180 | 1,0 | 306х604х 388 | 80 | ||
₽ 68 637.00 Заказная позиция | ||||||||
Теплообменник НН№07 ДУ 50 18-39 пластин 1,6 МПа | 2 | 18-39 | от -25 до +180 | 1,6 | 306х604х393 | 90 | ||
₽ 68 875.00 Заказная позиция | ||||||||
Теплообменник НН№07 ДУ 50 40-75 пластин 1,0 МПа | 3 | 40-75 | от -25 до +180 | 1,0 | 306х604х588 | 84 | ||
₽ 100 942.00 Заказная позиция | ||||||||
Теплообменник НН№07 ДУ 50 40-75 пластин 1,6 МПа | 3 | 40-75 | от -25 до +180 | 1,6 | 306х604х593 | 95 | ||
₽ 101 297.00 Заказная позиция | ||||||||
Теплообменник НН№07 ДУ 50 76-111 пластин 1,0 МПа | 4 | 76-111 | от -25 до +180 | 1,0 | 306х604х688 | 86 | ||
₽ 153 482.00 Заказная позиция | ||||||||
Теплообменник НН№07 ДУ 50 76-111 пластин 1,6 МПа | 4 | 76-111 | от -25 до +180 | 1,6 | 306х604х693 | 98 | ||
₽ 153 967.00 Заказная позиция | ||||||||
Теплообменник НН№07 ДУ 50 112-146 пластин 1,0 МПа | 5 | 112-146 | от -25 до +180 | 1,0 | 306х604х888 | 90 | ||
₽ 206 486.00 Заказная позиция | ||||||||
Теплообменник НН№07 ДУ 50 112-146 пластин 1,6 МПа | 5 | 112-146 | от -25 до +180 | 1,6 | 306х604х893 | 105 | ||
₽ 206 993.00 Заказная позиция | ||||||||
Теплообменник НН№07 ДУ 50 147-235 пластин 1,0 МПа | 6 | 147-235 | от -25 до +180 | 1,0 | 306х604х1188 | 97 | ||
₽ 258 890.00 Заказная позиция | ||||||||
Теплообменник НН№07 ДУ 50 147-235 пластин 1,6 МПа | 6 | 147-235 | от -25 до +180 | 1,6 | 306х604х1193 | 115 | ||
₽ 259 239.00 Заказная позиция | ||||||||

