Теплообменник НН№14 ДУ 50 112-146 пластин 1,6 МПа
Теплообменник Ридан НН№14, рама №5 — это разборный пластинчатый аппарат, рассчитанный на повышенное рабочее давление до 1,6 МПа. Конструкция рамы и пакета пластин обеспечивает надежную работу в системах с высокими нагрузками. В комплект поставки входят ответные фланцы ДУ 50.
- № рамы
- 5
- Количество пластин
- 112-146
- Температура рабочей среды, °С
- от -25 до +180
Подбор рекомендованного аналога
Заполните форму, и мы обязательно с Вами свяжемсяОсновное
Все характеристикиПредприятие обеспечивает полный производственный цикл, включая производство пластин, плит, элементов рам и других комплектующих. Локализация достигает 95%, мощность предприятия составляет более 20 тыс. изделий в год.
- № рамы
- 5
- Количество пластин
- 112-146
- Температура рабочей среды, °С
- от -25 до +180
- Расчетное давление, МПа
- 1,6
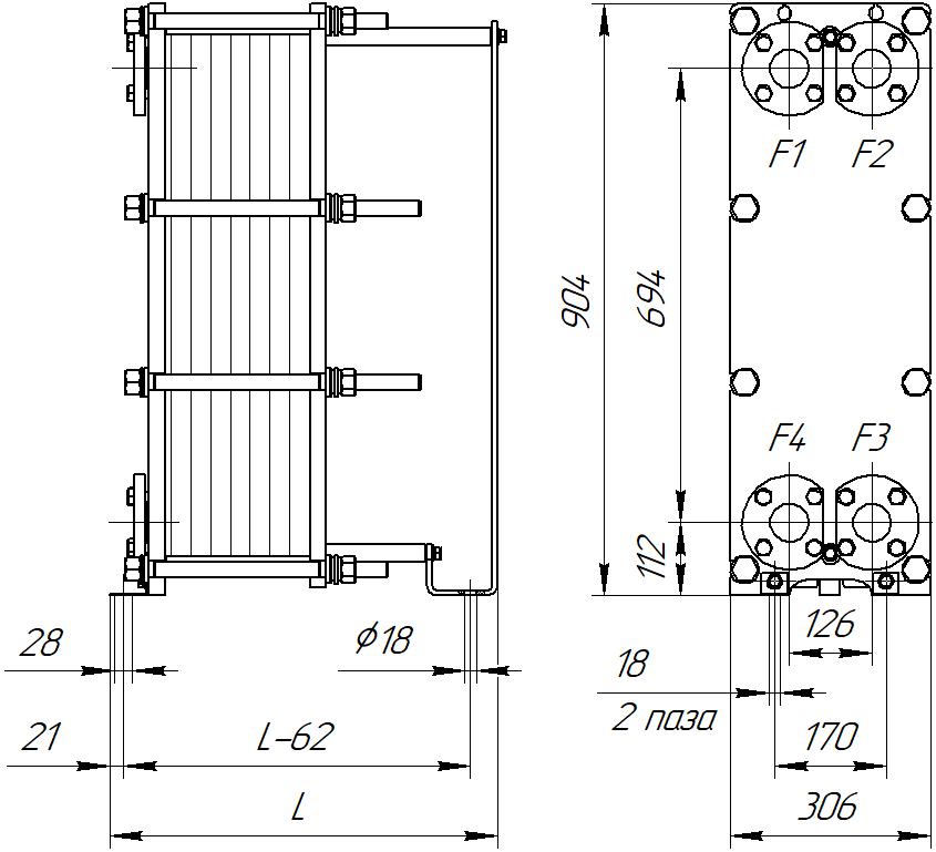
- Габаритные размеры (ШхВхГ), мм
- 306х904х893
- Макс. масса, кг
- 360
Обзор
Обзор- Конфигурация пластин: Количество пластин в пакете составляет от 112 до 146 штук. Это позволяет варьировать общую площадь теплообмена в диапазоне от 17,25 м² до 22,18 м² (при площади одной пластины 0,154 м²).
- Типы каналов: Аппарат комплектуется пластинами с типами каналов ТК, ТМ, TL и комбинациями, что позволяет подобрать теплообменник под конкретные параметры системы.
- Конструктивные особенности: Модель характеризуется габаритными размерами 306х904х893 мм и массой 360 кг, что обусловлено применением усиленных элементов рамы и плит для работы при давлении 1,6 МПа. В комплектацию включены ответные фланцы ДУ 50.
- Надежное уплотнение (Hang-on):
Герметичность конструкции обеспечивается прокладками с инновационной системой фиксации Hang-on. Т-образные концы клипсы надежно защелкиваются за пластину, создавая прочное соединение без клея. Этот способ не только повышает надежность уплотнения, но и позволяет быстро заменять прокладки, а дополнительное крепление через специальное ушко и уплотнения портов гарантирует максимальную защиту от протечек. - Дополнительные опции: Возможна комплектация теплоизоляцией для снижения тепловых потерь.
Документы
Все документы- № рамы
- 5
- Количество пластин
- 112-146
- Температура рабочей среды, °С
- от -25 до +180
- Регулируемая среда (теплоноситель)
- вода, пар, углеводороды, кислоты, пищевые жидкости и другие
- Рабочее давление, бар изб.
- до 25
- Расчетное давление, МПа
- 1,6
- Материал пластин
- AISI 304, AISI 316L, SMO 254, Titan, C-276 и другие
- Материал прокладки
- EPDM, Nitril, Viton и их модификации
- Габаритные размеры (ШхВхГ), мм
- 306х904х893
- Макс. масса, кг
- 360
- Стяжные шпильки (размер)
- М24
- Стяжные шпильки (кол-во), шт
- 8
- Конфигурация пластин: Количество пластин в пакете составляет от 112 до 146 штук. Это позволяет варьировать общую площадь теплообмена в диапазоне от 17,25 м² до 22,18 м² (при площади одной пластины 0,154 м²).
- Типы каналов: Аппарат комплектуется пластинами с типами каналов ТК, ТМ, TL и комбинациями, что позволяет подобрать теплообменник под конкретные параметры системы.
- Конструктивные особенности: Модель характеризуется габаритными размерами 306х904х893 мм и массой 360 кг, что обусловлено применением усиленных элементов рамы и плит для работы при давлении 1,6 МПа. В комплектацию включены ответные фланцы ДУ 50.
- Надежное уплотнение (Hang-on):
Герметичность конструкции обеспечивается прокладками с инновационной системой фиксации Hang-on. Т-образные концы клипсы надежно защелкиваются за пластину, создавая прочное соединение без клея. Этот способ не только повышает надежность уплотнения, но и позволяет быстро заменять прокладки, а дополнительное крепление через специальное ушко и уплотнения портов гарантирует максимальную защиту от протечек. - Дополнительные опции: Возможна комплектация теплоизоляцией для снижения тепловых потерь.
Товары серии
Название и артикул | № рамы | Количество пластин | Температура рабочей среды, °С | Расчетное давление, МПа | Габаритные размеры (ШхВхГ), мм | Макс. масса, кг | ||
|---|---|---|---|---|---|---|---|---|
Теплообменник НН№14 ДУ 50 5-17 пластин 1,0 МПа | 1 | 5-17 | от -25 до +180 | 1,0 | 306х904х288 | 130 | ||
₽ 56 740.00 Заказная позиция | ||||||||
Теплообменник НН№14 ДУ 50 5-17 пластин 1,6 МПа | 1 | 5-17 | от -25 до +180 | 1,6 | 306х904х293 | 141 | ||
₽ 60 801.00 Заказная позиция | ||||||||
Теплообменник НН№14 ДУ 50 18-39 пластин 1,0 МПа | 2 | 18-39 | от -25 до +180 | 1,0 | 306х904х388 | 160 | ||
₽ 79 676.00 Заказная позиция | ||||||||
Теплообменник НН№14 ДУ 50 18-39 пластин 1,6 МПа | 2 | 18-39 | от -25 до +180 | 1,6 | 306х904х393 | 171 | ||
₽ 89 796.00 Заказная позиция | ||||||||
Теплообменник НН№14 ДУ 50 40-75 пластин 1,0 МПа | 3 | 40-75 | от -25 до +180 | 1,0 | 306х904х588 | 190 | ||
₽ 118 452.00 Заказная позиция | ||||||||
Теплообменник НН№14 ДУ 50 40-75 пластин 1,6 МПа | 3 | 40-75 | от -25 до +180 | 1,6 | 306х904х593 | 205 | ||
₽ 138 117.00 Заказная позиция | ||||||||
Теплообменник НН№14 ДУ 50 76-111 пластин 1,0 МПа | 4 | 76-111 | от -25 до +180 | 1,0 | 306х904х688 | 255 | ||
₽ 181 589.00 Заказная позиция | ||||||||
Теплообменник НН№14 ДУ 50 76-111 пластин 1,6 МПа | 4 | 76-111 | от -25 до +180 | 1,6 | 306х904х693 | 268 | ||
₽ 216 767.00 Заказная позиция | ||||||||
Теплообменник НН№14 ДУ 50 112-146 пластин 1,0 МПа | 5 | 112-146 | от -25 до +180 | 1,0 | 306х904х888 | 345 | ||
₽ 245 540.00 Заказная позиция | ||||||||
Теплообменник НН№14 ДУ 50 112-146 пластин 1,6 МПа | 5 | 112-146 | от -25 до +180 | 1,6 | 306х904х893 | 360 | ||
₽ 295 904.00 Заказная позиция | ||||||||
Теплообменник НН№14 ДУ 50 147-235 пластин 1,0 МПа | 6 | 147-235 | от -25 до +180 | 1,0 | 306х904х1188 | 355 | ||
₽ 312 222.00 Заказная позиция | ||||||||
Теплообменник НН№14 ДУ 50 147-235 пластин 1,6 МПа | 6 | 147-235 | от -25 до +180 | 1,6 | 306х904х1193 | 371 | ||
₽ 315 352.00 Заказная позиция | ||||||||

