Теплообменник НН№14 ДУ 50 147-235 пластин 1,6 МПа
Теплообменник Ридан НН№14 (рама №6) — это аппарат максимальной производительности в серии, рассчитанный на повышенное рабочее давление до 1,6 МПа. Конструкция обладает усиленной рамой и предназначена для эксплуатации в системах с высокими нагрузками. Аппарат поставляется с ответными фланцами ДУ 50.
- № рамы
- 6
- Количество пластин
- 147-235
- Температура рабочей среды, °С
- от -25 до +180
Подбор рекомендованного аналога
Заполните форму, и мы обязательно с Вами свяжемсяОсновное
Все характеристикиПредприятие обеспечивает полный производственный цикл, включая производство пластин, плит, элементов рам и других комплектующих. Локализация достигает 95%, мощность предприятия составляет более 20 тыс. изделий в год.
- № рамы
- 6
- Количество пластин
- 147-235
- Температура рабочей среды, °С
- от -25 до +180
- Расчетное давление, МПа
- 1,6
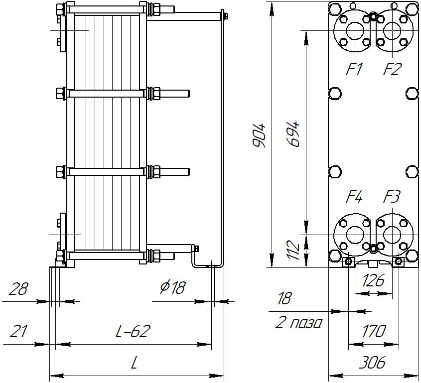
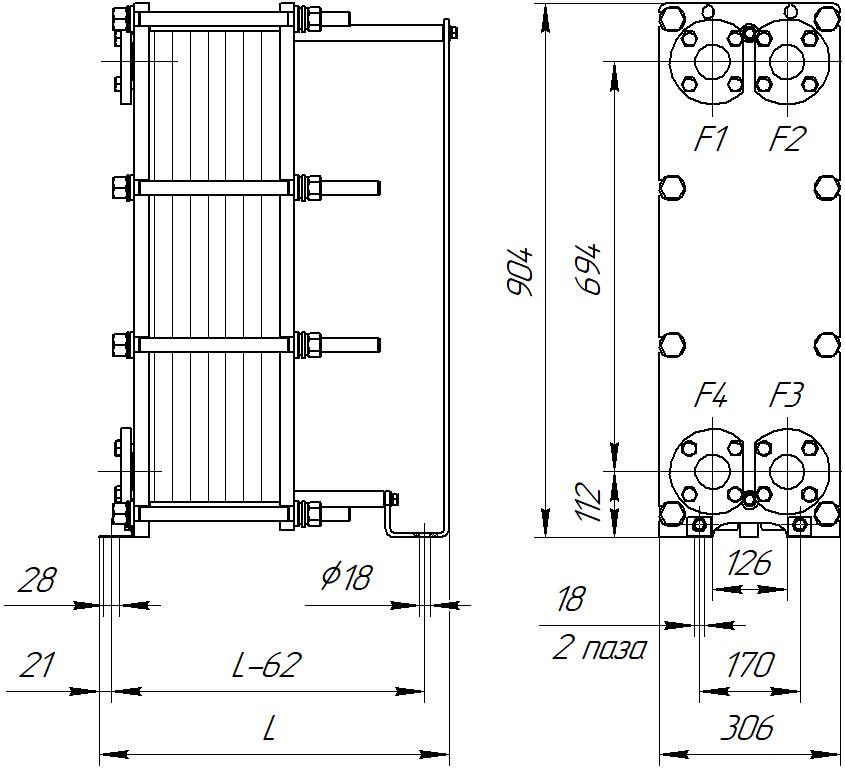
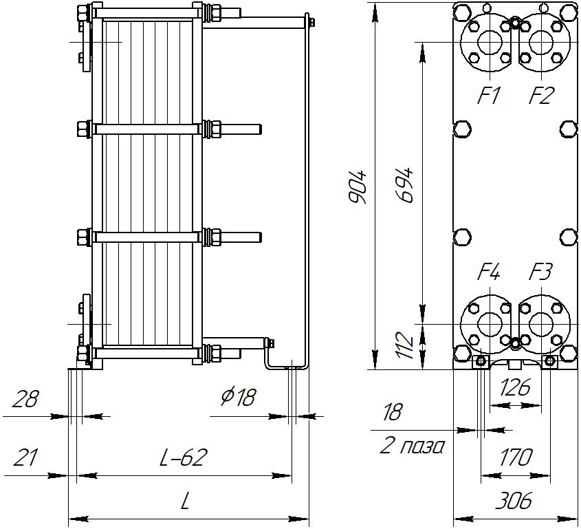
- Габаритные размеры (ШхВхГ), мм
- 306х904х1193
- Макс. масса, кг
- 371
Обзор
Обзор- Конфигурация и параметры: Пакет включает от 147 до 235 пластин, обеспечивая площадь теплообмена до 35,88 м². Усиленная конструкция гарантирует работоспособность на давлении 1,6 МПа. Габаритные размеры аппарата (ШхВхГ) составляют 306х904х1193 мм, вес — 371 кг.
- Типы каналов: Аппарат комплектуется пластинами с типами каналов ТК, ТМ, TL и их комбинациями. Данная вариативность позволяет подобрать оптимальное решение под строгие параметры системы.
- Надежное уплотнение (Hang-on):
Герметичность обеспечивается прокладками с клипсовой фиксацией типа Hang-on. Принцип фиксации: клипса имеет Т-образные концы, которые заводятся за обратную сторону пластины. В отличие от клеевых соединений, такой клипсовый замок обеспечивает простую и быструю замену прокладок. Монтируется в специальные углубления по контуру пластины, а дополнительная надежность обеспечивается специальным ушком на Hang-on.
Дополнительную герметичность обеспечивают уплотнения портов на неподвижной плите. - Дополнительные опции: Возможность комплектации теплоизоляцией для снижения тепловых потерь
Документы
Все документы- № рамы
- 6
- Количество пластин
- 147-235
- Температура рабочей среды, °С
- от -25 до +180
- Регулируемая среда (теплоноситель)
- вода, пар, углеводороды, кислоты, пищевые жидкости и другие
- Рабочее давление, бар изб.
- до 25
- Расчетное давление, МПа
- 1,6
- Материал пластин
- AISI 304, AISI 316L, SMO 254, Titan, C-276 и другие
- Материал прокладки
- EPDM, Nitril, Viton и их модификации
- Габаритные размеры (ШхВхГ), мм
- 306х904х1193
- Макс. масса, кг
- 371
- Стяжные шпильки (размер)
- М24
- Стяжные шпильки (кол-во), шт
- 8
- Конфигурация и параметры: Пакет включает от 147 до 235 пластин, обеспечивая площадь теплообмена до 35,88 м². Усиленная конструкция гарантирует работоспособность на давлении 1,6 МПа. Габаритные размеры аппарата (ШхВхГ) составляют 306х904х1193 мм, вес — 371 кг.
- Типы каналов: Аппарат комплектуется пластинами с типами каналов ТК, ТМ, TL и их комбинациями. Данная вариативность позволяет подобрать оптимальное решение под строгие параметры системы.
- Надежное уплотнение (Hang-on):
Герметичность обеспечивается прокладками с клипсовой фиксацией типа Hang-on. Принцип фиксации: клипса имеет Т-образные концы, которые заводятся за обратную сторону пластины. В отличие от клеевых соединений, такой клипсовый замок обеспечивает простую и быструю замену прокладок. Монтируется в специальные углубления по контуру пластины, а дополнительная надежность обеспечивается специальным ушком на Hang-on.
Дополнительную герметичность обеспечивают уплотнения портов на неподвижной плите. - Дополнительные опции: Возможность комплектации теплоизоляцией для снижения тепловых потерь
Товары серии
Название и артикул | № рамы | Количество пластин | Температура рабочей среды, °С | Расчетное давление, МПа | Габаритные размеры (ШхВхГ), мм | Макс. масса, кг | ||
|---|---|---|---|---|---|---|---|---|
Теплообменник НН№14 ДУ 50 5-17 пластин 1,0 МПа | 1 | 5-17 | от -25 до +180 | 1,0 | 306х904х288 | 130 | ||
₽ 56 740.00 Заказная позиция | ||||||||
Теплообменник НН№14 ДУ 50 5-17 пластин 1,6 МПа | 1 | 5-17 | от -25 до +180 | 1,6 | 306х904х293 | 141 | ||
₽ 60 801.00 Заказная позиция | ||||||||
Теплообменник НН№14 ДУ 50 18-39 пластин 1,0 МПа | 2 | 18-39 | от -25 до +180 | 1,0 | 306х904х388 | 160 | ||
₽ 79 676.00 Заказная позиция | ||||||||
Теплообменник НН№14 ДУ 50 18-39 пластин 1,6 МПа | 2 | 18-39 | от -25 до +180 | 1,6 | 306х904х393 | 171 | ||
₽ 89 796.00 Заказная позиция | ||||||||
Теплообменник НН№14 ДУ 50 40-75 пластин 1,0 МПа | 3 | 40-75 | от -25 до +180 | 1,0 | 306х904х588 | 190 | ||
₽ 118 452.00 Заказная позиция | ||||||||
Теплообменник НН№14 ДУ 50 40-75 пластин 1,6 МПа | 3 | 40-75 | от -25 до +180 | 1,6 | 306х904х593 | 205 | ||
₽ 138 117.00 Заказная позиция | ||||||||
Теплообменник НН№14 ДУ 50 76-111 пластин 1,0 МПа | 4 | 76-111 | от -25 до +180 | 1,0 | 306х904х688 | 255 | ||
₽ 181 589.00 Заказная позиция | ||||||||
Теплообменник НН№14 ДУ 50 76-111 пластин 1,6 МПа | 4 | 76-111 | от -25 до +180 | 1,6 | 306х904х693 | 268 | ||
₽ 216 767.00 Заказная позиция | ||||||||
Теплообменник НН№14 ДУ 50 112-146 пластин 1,0 МПа | 5 | 112-146 | от -25 до +180 | 1,0 | 306х904х888 | 345 | ||
₽ 245 540.00 Заказная позиция | ||||||||
Теплообменник НН№14 ДУ 50 112-146 пластин 1,6 МПа | 5 | 112-146 | от -25 до +180 | 1,6 | 306х904х893 | 360 | ||
₽ 295 904.00 Заказная позиция | ||||||||
Теплообменник НН№14 ДУ 50 147-235 пластин 1,0 МПа | 6 | 147-235 | от -25 до +180 | 1,0 | 306х904х1188 | 355 | ||
₽ 312 222.00 Заказная позиция | ||||||||
Теплообменник НН№14 ДУ 50 147-235 пластин 1,6 МПа | 6 | 147-235 | от -25 до +180 | 1,6 | 306х904х1193 | 371 | ||
₽ 315 352.00 Заказная позиция | ||||||||

