Теплообменник НН№20 ДУ 50 40-75 пластин 1,0 МПа
Теплообменник Ридан НН№20 (рама №3) — это производительная модель, созданная для эффективного теплообмена в условиях высоких нагрузок. Аппарат с условным проходом Ду 50 мм и рабочим давлением 1,0 МПа поддерживает установку от 40 до 75 пластин.
- № рамы
- 3
- Количество пластин
- 40-75
- Температура рабочей среды, °С
- от -25 до +180
Подбор рекомендованного аналога
Заполните форму, и мы обязательно с Вами свяжемсяОсновное
Все характеристикиПредприятие обеспечивает полный производственный цикл, включая производство пластин, плит, элементов рам и других комплектующих. Локализация достигает 95%, мощность предприятия составляет более 20 тыс. изделий в год.
- № рамы
- 3
- Количество пластин
- 40-75
- Температура рабочей среды, °С
- от -25 до +180
- Расчетное давление, МПа
- 1,0
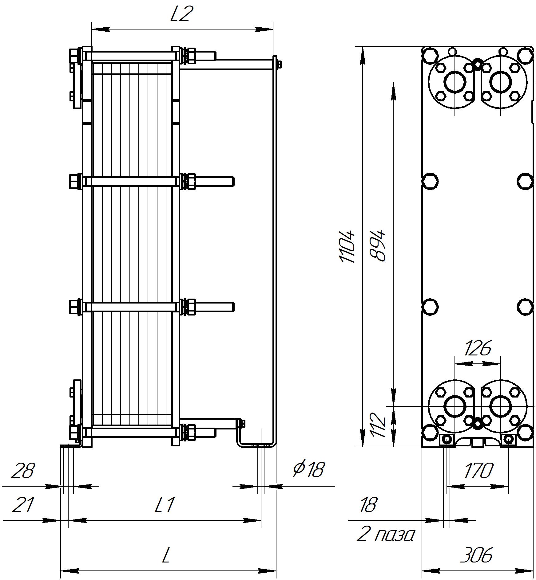
- Габаритные размеры (ШхВхГ), мм
- 306х1104х593
- Макс. масса, кг
- 150
Обзор
Обзор- Конфигурация пластин: Количество пластин в пакете составляет от 40 до 75 штук. Это позволяет обеспечить общую площадь теплообмена до 14,75 м² (при площади одной пластины 0,202 м²).
- Типы каналов: Конструкция теплообменника позволяет комбинировать типы каналов ТК, ТМ, TL , что позволяет подобрать теплообменник под конкретные параметры системы.
- Конструктивные особенности: Модель характеризуется габаритными размерами 306х904х893 мм и массой 360 кг, что обусловлено применением усиленных элементов рамы и плит для работы при давлении 1,6 МПа. В комплектацию включены ответные фланцы ДУ 50.
- Технология уплотнения Hang-on:
Использование клипсовых прокладок Hang-on — это стандарт для теплообменников Ридан. Они фиксируются за обратную сторону пластины, что повышает надежность уплотнения и упрощает сервисное обслуживание. - Дополнительные опции: Теплоизоляция теплообменного аппарата.
Документы
Все документы- № рамы
- 3
- Количество пластин
- 40-75
- Температура рабочей среды, °С
- от -25 до +180
- Регулируемая среда (теплоноситель)
- вода, пар, углеводороды, кислоты, пищевые жидкости и другие
- Рабочее давление, бар изб.
- до 25
- Расчетное давление, МПа
- 1,0
- Материал пластин
- AISI 304, AISI 316L, SMO 254, Titan, C-276 и другие
- Материал прокладки
- EPDM, Nitril, Viton и их модификации
- Габаритные размеры (ШхВхГ), мм
- 306х1104х593
- Макс. масса, кг
- 150
- Стяжные шпильки (размер)
- М20
- Стяжные шпильки (кол-во), шт
- 8
- Конфигурация пластин: Количество пластин в пакете составляет от 40 до 75 штук. Это позволяет обеспечить общую площадь теплообмена до 14,75 м² (при площади одной пластины 0,202 м²).
- Типы каналов: Конструкция теплообменника позволяет комбинировать типы каналов ТК, ТМ, TL , что позволяет подобрать теплообменник под конкретные параметры системы.
- Конструктивные особенности: Модель характеризуется габаритными размерами 306х904х893 мм и массой 360 кг, что обусловлено применением усиленных элементов рамы и плит для работы при давлении 1,6 МПа. В комплектацию включены ответные фланцы ДУ 50.
- Технология уплотнения Hang-on:
Использование клипсовых прокладок Hang-on — это стандарт для теплообменников Ридан. Они фиксируются за обратную сторону пластины, что повышает надежность уплотнения и упрощает сервисное обслуживание. - Дополнительные опции: Теплоизоляция теплообменного аппарата.
Товары серии
Название и артикул | № рамы | Количество пластин | Температура рабочей среды, °С | Расчетное давление, МПа | Габаритные размеры (ШхВхГ), мм | Макс. масса, кг | ||
|---|---|---|---|---|---|---|---|---|
Теплообменник НН№20 ДУ 50 5-17 пластин 1,0 МПа | 1 | 5-17 | от -25 до +180 | 1,0 | 306х1104х293 | 140 | ||
₽ 75 157.00 Заказная позиция | ||||||||
Теплообменник НН№20 ДУ 50 5-17 пластин 1,6 МПа | 1 | 5-17 | от -25 до +180 | 1,6 | 306х1104х293 | 145 | ||
₽ 75 975.00 Заказная позиция | ||||||||
Теплообменник НН№20 ДУ 50 18-39 пластин 1,0 МПа | 2 | 18-39 | от -25 до +180 | 1,0 | 306х1104х393 | 145 | ||
₽ 106 206.00 Заказная позиция | ||||||||
Теплообменник НН№20 ДУ 50 18-39 пластин 1,6 МПа | 2 | 18-39 | от -25 до +180 | 1,6 | 306х1104х393 | 150 | ||
₽ 103 623.00 Заказная позиция | ||||||||
Теплообменник НН№20 ДУ 50 40-75 пластин 1,0 МПа | 3 | 40-75 | от -25 до +180 | 1,0 | 306х1104х593 | 150 | ||
₽ 158 713.00 Заказная позиция | ||||||||
Теплообменник НН№20 ДУ 50 40-75 пластин 1,6 МПа | 3 | 40-75 | от -25 до +180 | 1,6 | 306х1104х593 | 155 | ||
₽ 149 667.00 Заказная позиция | ||||||||
Теплообменник НН№20 ДУ 50 76-111 пластин 1,0 МПа | 4 | 76-111 | от -25 до +180 | 1,0 | 306х1104х693 | 155 | ||
₽ 245 358.00 Заказная позиция | ||||||||
Теплообменник НН№20 ДУ 50 76-111 пластин 1,6 МПа | 4 | 76-111 | от -25 до +180 | 1,6 | 306х1104х693 | 160 | ||
₽ 225 633.00 Заказная позиция | ||||||||
Теплообменник НН№20 ДУ 50 112-146 пластин 1,0 МПа | 5 | 112-146 | от -25 до +180 | 1,0 | 306х1104х893 | 160 | ||
₽ 331 777.00 Заказная позиция | ||||||||
Теплообменник НН№20 ДУ 50 112-146 пластин 1,6 МПа | 5 | 112-146 | от -25 до +180 | 1,6 | 306х1104х893 | 165 | ||
₽ 301 044.00 Заказная позиция | ||||||||
Теплообменник НН№20 ДУ 50 147-235 пластин 1,0 МПа | 6 | 147-235 | от -25 до +180 | 1,0 | 306х1104х1193 | 165 | ||
₽ 375 137.00 Заказная позиция | ||||||||
Теплообменник НН№20 ДУ 50 147-235 пластин 1,6 МПа | 6 | 147-235 | от -25 до +180 | 1,6 | 306х1104х1193 | 175 | ||
₽ 377 934.00 Заказная позиция | ||||||||

